网站主页
买球赛的网站
董事长致辞
企业简介
卓越管理
资质荣誉
办公环境
车间装备
中国买球指南
制粒中国买球指南
干燥中国买球指南
混合中国买球指南
周转中国买球指南
清洗中国买球指南
配套中国买球指南
换热器
新闻动态
成功案例
联系我们
您现在所在的位置:
首页
>
中国买球指南
>
干燥中国买球指南
> GGD高真空干燥箱
制粒中国买球指南
CCS制粒模块中国买球指南
GHL高效湿法混合制粒机
DFL多功能制粒包衣机
FL沸腾干燥制粒机
干燥中国买球指南
闭路沸腾干燥机
FG沸腾干燥机
YZG/FZG真空干燥机
GGD高真空干燥箱
GZL立式真空振动流动干燥机
GZW卧式振动真空干燥机
SZG双锥回转真空干燥机
ZLG中药浸膏喷雾干燥机
DWT带式干燥机
DW带式干燥机
XF沸腾干燥机
GM百级干热灭菌柜
CT/CT-C热风循环烘箱
混合中国买球指南
ZTH快夹式全自动混合机
SYH高效三维运动混合机
DTH单立柱全自动提升料斗混合机
FH方锥混合机
EYH二维运动混合机
VH中国买球指南V型混合机
WHJ实验室料斗混合机
DSH中国买球指南锥形双螺杆螺旋混合机
周转中国买球指南
YDX料桶提升加料机
YYT移动伸缩式提升加料机
NTG固定提升加料机
YTZ液压提升整料转料机
ZSL-III中国买球指南真空上料机
CYT层间液压提升机
ZLT混合周转料桶
清洗中国买球指南
QXZ中国买球指南全自动清洗站系统
TQXZ型单柱提升清洗机
QXJ多用途清洗机
YQ移动清洗机
配套中国买球指南
ZS振动筛粉机
FZ粉碎整粒机
YK160摇摆式颗粒机
30B中国买球指南吸尘粉碎机组
换热器
碳化硅列管换热器
可拆式螺旋螺纹管换热器
螺旋螺纹管换热器
买球赛的网站
联系人:王总
电话:0510-86184255
传真:0510-86173899
E-mail:jyjirui88@163.com
网址:www.huaweishuma.com
地址:江阴南闸东盟科技园东盟路8号
GGD高真空干燥箱
GGD高真空干燥箱
高真空度
空载极限真空(气压)1.3~13Pa(0.01~0.1托)
高洁净
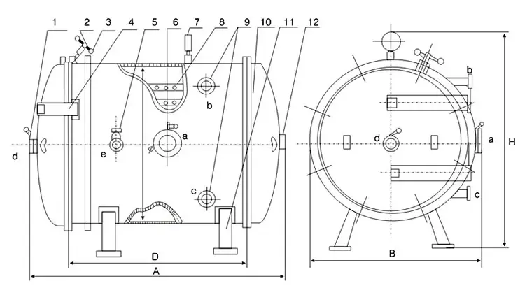
全部材质用“304”或“316L”制作,表面磨平抛光。可全部在100级洁净间内使用,也可部分置于100级洁净间内使用,为此装有专用隔离板,如图中之“3”。
低温快干
溶剂在高真空状态下容易气化或升华。
国内首创
本中国买球指南产品仿制国外同类产品,结合国产零配件的特点和标准,精心设计制作,价格仅为同类进口产品的十分之一。
完全接“GMP”规范设计、制作
1 放空口阀门 2 锁紧装置 3 隔墙板 4 手臂 5 测压口阀门 6 抽气口阀门
7 温度计 8 烘架 9 进出热水口法兰 10 箱体 11 腿 12 铭牌
技术参数
本公司可按用户特殊要求定制生产,如有变动,恕不预先通知!
接口表
本公司可按用户特殊要求定制生产,如有变动,恕不预先通知!
返回目录
相关产品:
GZL立式真空振动流动干燥机
GZW卧式振动真空干燥机
SZG双锥回转真空干燥机
ZLG中药浸膏喷雾干燥机
DWT带式干燥机
Copyright (c) 2015 买球赛的网站.All rights reserved.
分享到:
乐鱼页面在线登录
|
米兰注册
|
九游在线登录官网
|
米兰网页版
|
星空网页版登录页面入口
|
开云电子官方网站_开云(中国)
|
九游会在线登录官网
|
乐鱼官网首页入口
|
乐鱼买球·(中国)官方网站
|